Iglo Energy Classic
Iglo Energy Classic
Modernes Design, innovative Technik und hohe Energieeffizienz – für noch geringere Heizkosten!
Eigenschaften
Eigenschaften
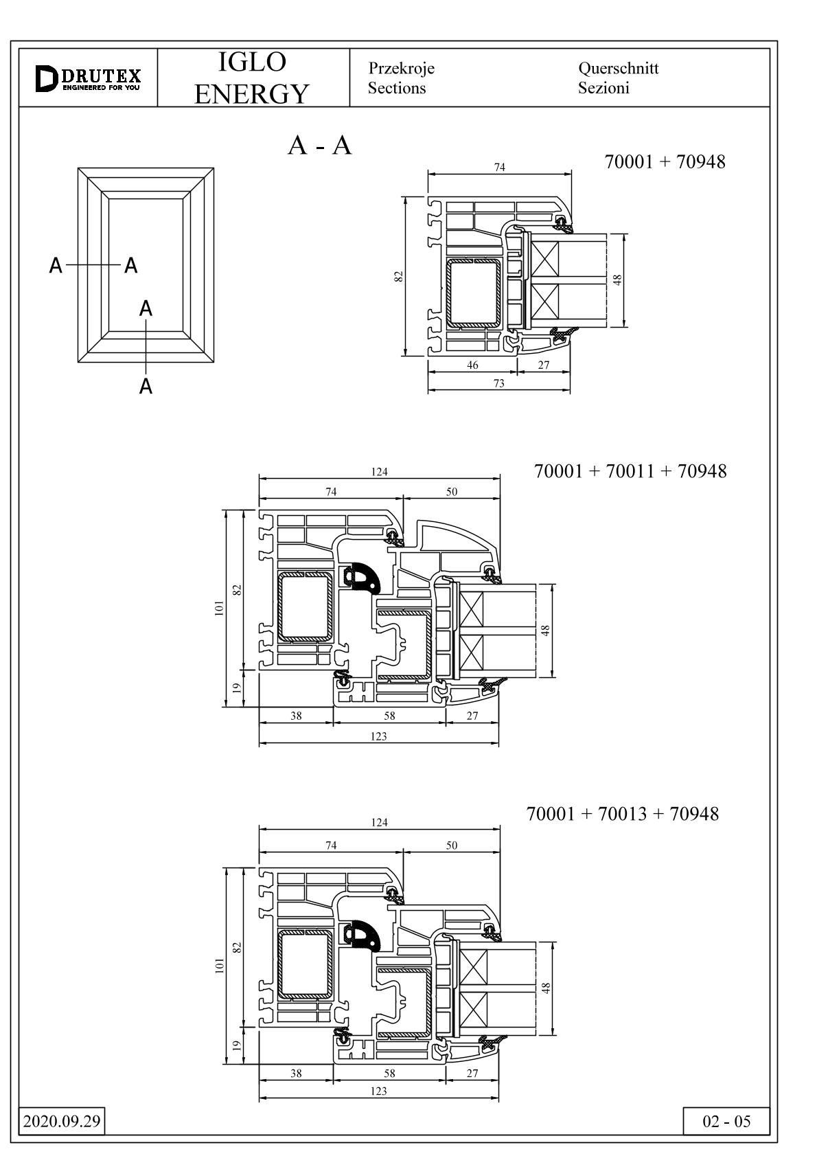
7-Kammerprofil, Rahmen und Flügel gefertigt ausschließlich aus Primärrohstoff, Klasse A, Einbautiefe 82 mm.
Verglasungsstärke bis 48 mm In Standardausführung Glaspaket 4/18/4/18/4 mit Wärmedurchgangskoeffizient Ug = 0,5 W/(m2K) Einsatz eines Vierscheibenpakets mit Ug = 0,3 W/(m2K) auf Wunsch Einsatz von speziellen Glasarten: für die größere Schalldämmung, gehärtet, Sicherheits-, Einbruchhemmungs-, Zier- und Sonnenschutzglas
MACO MULTI MATIC KS mit zwei Einbruchsicherungszapfen in Standardausführung; Beschichtung in Silber-Look mit linienförmigen Vertiefungen an den Schiebebeschlägen; optional verdeckte Scharniere in der Einkerbung des Beschlags sowie Lösungen in der Einbruchschutz-Klasse RC 2 und RC 2N, ausgestattet mit einer Fehlbedienungssperre des Fenstergriffs und einem Flügelheber*, Microventilierung
Das Fenster wird mit dreifacher Dichtung versehen: außen und innen aus EPDM, Zentraldichtung aus geschäumtem EPDM. Die äußeren und inneren Dichtungen sind in Schwarz oder Grauer erhältlich.
Werte
Rw = 35-46 dB (je nach eingesetztem Glaspaket)
Uw = 0,79 W/(m2K)*
* Für ein Fenster mit den Maßen 1230 mm x 1480 mm gemäß CSI in Tschechien
Verwandte Produkte
Verwandte Produkte
Projektbezeichnung
Title or short description




