Iglo 5
Iglo 5
Sehr gute Wärmedämmungsparameter zu günstigen Preisen – für einen deutlich geringeren Wärmeverlust
Eigenschaften
Eigenschaften
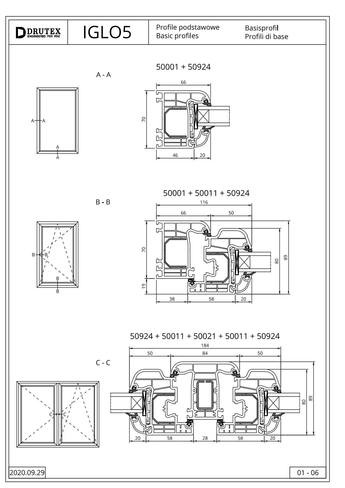
5-Kammerprofile, Rahmen und Flügel gefertigt ausschließlich aus Primärrohstoff, Klasse A, Einbautiefe 70 mm.
Verglasungsdicke bis 40 mm. In Standardausführung Einkammerverglasung mit Wärmedurchgangskoeffizient Ug = 1,0 W/(m2K) nach PN/EN674 Möglicher Einsatz von Dreifachverglasung mit Ug = 0,6 W/(m2K). Einsatz von speziellen Glasarten: für die größere Schalldämmung, gehärtet, Sicherheits-, Einbruchhemmungs-, Zier- und Sonnenschutzglas.
MACO MULTI MATIC KS mit zwei Einbruchsicherungszapfen in Standardausführung; Beschichtung in Silber-Look mit linienförmigen Vertiefungen an den Schiebebeschlägen; optional verdeckte Scharniere in der Einkerbung des Beschlags sowie Lösungen in der Einbruchschutz-Klasse RC 2 und RC 2N, ausgestattet mit einer Fehlbedienungssperre des Fenstergriffs und einem Flügelheber*, Microventilierung
Das Fenster wird mit einer doppelten Dichtung versehen; Die äußeren und inneren Dichtungen sind in Schwarz oder Grauer hältlich.
Werte
Rw = 34-44 dB je nach eingesetztem Glaspaket.
Uw=0,94 W(m2K)*
* Für ein Fenster mit den Maßen 1230 mm x 1480 mm gemäß CSI in Tschechien





